Powrót











#40
Hotel Jantor - obiekt do rewitalizacji z opcją natychmiastowych przychodów
Obiekt do remontu i komercjalizacji ( sugerowany cel inwestycji - sprzedaż z dużym zyskiem odrębnie części hotelowej oraz lokali parteru )
Opis nieruchomości
Wprowadzenie
Hotel na Nikiszowcu – Katowice.
Obiekt hotelowy zlokalizowany w sercu historycznej dzielnicy Nikiszowiec, jednej z najcenniejszych i najbardziej rozpoznawalnych części Katowic.
Budynek oferuje kilkadziesiąt miejsc noclegowych na 1 i 2 piętrze.
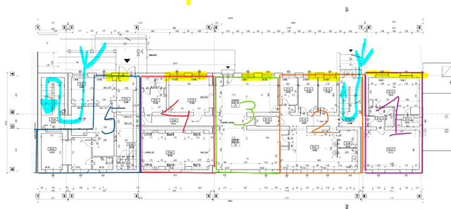
Dodatkowo 340 m2 lokali parteru - przyziemia posiada potencjał adaptacji na funkcje handlowo - usługowe.
W załączonych dokumentach inwentaryzacja poszczególnych kondygnacji, oraz sugerowany podział parteru na niezależne pięć lokali.
Nikiszowiec, ze względu na swój historyczny charakter zabudowy dysponuje niewielką ilością lokali użytkowych. Cztery funkcjonujące tam restauracje cieszą się pełnym obłożeniem niemalże non stop.
https://share.google/9Dn2a3tTUTPy7XEwb
https://maps.app.goo.gl/uWanoPufg6V4ZEoy6
https://maps.app.goo.gl/Bb5njK7T88UAkkiH6
W załączonych dokumentach inwentaryzacja poszczególnych kondygnacji, oraz sugerowany poglądowy podział POZIOMU ZERO na niezależne pięć lokali.
W bezpośrednim sąsiedztwie znajduję się hala sportowa https://www.mosir.katowice.pl/lodowisko-jantor
Z terenem hotelu będzie połączony komunikacyjnie teren powstającego obecnie retail parku z marketem LIDL, ROSSMANN, PEPCO, FABRYKA FORMY ( w galerii foto z budowy ). Uruchomienie 4Q 2026.
Potężnym magnesem przyciągającym klientów jest powstająca w sąsiedztwie największa inwestycja w historii Katowic ( Hub gamingowy) o wartości blisko miliarda złotych.
https://funduszeue.slaskie.pl/web/guest/w/rusza-budowa-dzielnicy-nowych-technologii
Docelowo w hubie ma pracować ok 3 tyś osób osób, a liczba odwiedzających jest też liczona w tysiącach codziennie.
W galerii zdjęcia okolicznych nowoczesnych osiedli oraz historycznego Nikiszowca.
Obiekt w trakcie rewitalizacji może generować przychody pełniąc zaplecze noclegowe dla firm budujących HUB.
Wyżej opisany potencjał definiuje powodzenie dla każdej formy działalności w oferowanych lokalach.
Budynki
Budynek wybudowano w 1968 roku a zmodernizowano na przełomie lat 2000, min przeprowadzając termomodernizację.
Powierzchnia pokoi i lokali trzech kondygnacji liczona bez ciągów komunikacyjnych wynosi około 960 m2
Dodatkowym atutem są piwnice o powierzchni 400 m2 z dostępem z poziomu zero, nadające się na rożnego powierzanie magazynowe.
Rzuty kondygnacji w sekcji załączniki. Łączna powierzchnia obiektu z piwnicami to ok 1500m2.
Poniżej materiały filmowe obiektu.
https://drive.google.com/drive/folders/1Olgam8_q2i7bPSQj74IGbrw_HL_bLyKU dach dron
https://drive.google.com/drive/folders/1T46XV_GFEBUxbMKhuxQKC7Rj2CVgQrng?usp=sharing pokoje
Działka
Teren o regularnym kształcie, zagospodarowany kostką brukową oraz zielenią.
Na terenie nieruchomości znajduje się parking na około 50 samochodów.

Infrastruktura, media, instalacje
Sprawne instalacje:
elektryczna
wodno-kanalizacyjna,
centralnego ogrzewania - piec gazowy
ciepłej wody użytkowej
instalacja hydrantowa, stalowa
Przeznaczenie w planowaniu przestrzennym
Brak MPZP co daje potencjał dla funkcji mieszkaniowej i usługowej
Nie szukaj samodzielnie! Otrzymuj oferty off-market.
Podaj swoje wymagania i otrzymuj dopasowane oferty off-market, zanim trafią na rynek publiczny.
